

DAS HAUS AM HANG




UNTERGESCHOSS

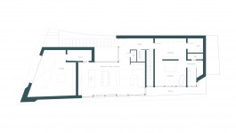
ERDGESCHOSS
Neubau eines
Einfamilienhauses
DIE AUFGABE
Die Bauherren wollten sich nochmal einmal neu verwirklichen, den alten Strukturen ihres bisherigen Hauses entfliehen. Das neue Wohnhaus, das am Hang nebenan mit Weitblick über die ganze Umgebung geplant war, sollte großzügig, lichtdurchflutet und klar strukturiert sein. Eine weiterer Wunsch war die Integration eines Swimmingpools sowie einer Sauna im Keller des Hauses. Das Design des Hauses sollte von einfachen Formen und einer klaren Linienführung geprägt sein, aber auch etwas spektakulär. Auf Grund der Hanglage sowie der sehr schmalen und längsorientierten Grundstücksform, war beim Entwurf ein hohes Maß an Individualität gefragt um ein funktionales Konzept zu entwickeln.
DAS KONZEPT
Das Entwurfskonzept beschreibt ein modernes Wohnhaus mit klaren, minimalistischen Linien und großen Fensterfronten die einen beinahe grenzenlosen Blick über die Umgebung ermöglichen. Der obere Baukörper steht im bewussten farblichen Kontrast zum darunter liegenden Kellergeschoss. Der Überhang und seine besondere Geometrie verleihen dem Ganzen eine scheinbar schwebende Optik. Die großzügige Raumaufteilung folgt dem Wunsch der Bauherren wurde optimal an die Gegebenheiten angepasst. Zusammengefasst fügt sich das Gebäude, trotz seiner provokanten Ausstrahlung harmonisch in die von der Hanglage geprägten Umgebung ein und zeigt eine moderne und Wohnlösung.
ORT
Faulungen (Eichsfeld, Thüringen)
Bestand




DAS HAUS AM HANG





UNTERGESCHOSS

ERDGESCHOSS
Neubau eines
Einfamilienhauses
DIE AUFGABE
Die Bauherren wollten sich nochmal einmal neu verwirklichen, den alten Strukturen ihres bisherigen Hauses entfliehen. Das neue Wohnhaus, das am Hang nebenan mit Weitblick über die ganze Umgebung geplant war, sollte großzügig, lichtdurchflutet und klar strukturiert sein. Eine weiterer Wunsch war die Integration eines Swimmingpools sowie einer Sauna im Keller des Hauses. Das Design des Hauses sollte von einfachen Formen und einer klaren Linienführung geprägt sein, aber auch etwas spektakulär. Auf Grund der Hanglage sowie der sehr schmalen und längsorientierten Grundstücksform, war beim Entwurf ein hohes Maß an Individualität gefragt um ein funktionales Konzept zu entwickeln.
DAS KONZEPT
Das Entwurfskonzept beschreibt ein modernes Wohnhaus mit klaren, minimalistischen Linien und großen Fensterfronten die einen beinahe grenzenlosen Blick über die Umgebung ermöglichen. Der obere Baukörper steht im bewussten farblichen Kontrast zum darunter liegenden Kellergeschoss. Der Überhang und seine besondere Geometrie verleihen dem Ganzen eine scheinbar schwebende Optik. Die großzügige Raumaufteilung folgt dem Wunsch der Bauherren wurde optimal an die Gegebenheiten angepasst. Zusammengefasst fügt sich das Gebäude, trotz seiner provokanten Ausstrahlung harmonisch in die von der Hanglage geprägten Umgebung ein und zeigt eine moderne und Wohnlösung.
ORT
Faulungen (Eichsfeld, Thüringen)
Bestand


