

DIE SCHEUNE





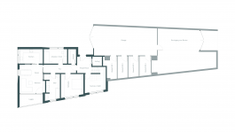
ERDGESCHOSS

1. UND 2. OBERGESCHOSS
Neubau eines
Mehrfamilienhauses und
Umbau einer Scheune
DIE AUFGABE
Der Wunsch des Bauherren war zu Beginn der Planungsphase der Neu- bzw. Ersatzbau des ursprünglichen Wohnhauses und der Erhalt der ca. 100 Jahre alten rückwertigen Scheune. Im weiteren Verlauf der Planung ergab sich der Wunsch, die Rendite für den Bau der Mietwohnungen durch eine weitere Wohneinheit zu erhöhen. Um dieses Ziel zu erreichen, kam nur der Umbau der Scheune dafür in Frage.
DAS KONZEPT
Die Schwierigkeit beim Entwurf war das kleine Grundstück und dazu der Wunsch die Scheune ebenfalls als Wohnraum zu nutzen. Da diese in Bezug auf das bestehende Tragwerk und der vorhandenen Raumhöhe nicht dafür geeignet war, stellte vor allem das bei der Planung eine große Herausforderung dar. Durch den zusätzlichen Umbau der Scheune, sowie der Aufnahme des schrägen Grenzverlaufs auf der Südseite des Gebäudes, wurde bei der Umsetzung der maximal mögliche Wohnraum geschaffen. Die schrägen Fensterlaibungen geben dem Gebäude noch das gewisse Etwas und begünstigen zudem den Lichteinfall in die Wohnungen.
ORT
Uder (Eichsfeld, Thüringen)
BESTAND




DIE SCHEUNE






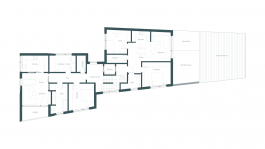
ERDGESCHOSS

1. UND 2. OBERGESCHOSS
Neubau eines
Mehrfamilienhauses und
Umbau einer Scheune
DIE AUFGABE
Der Wunsch des Bauherren war zu Beginn der Planungsphase der Neu- bzw. Ersatzbau des ursprünglichen Wohnhauses und der Erhalt der ca. 100 Jahre alten rückwertigen Scheune. Im weiteren Verlauf der Planung ergab sich der Wunsch, die Rendite für den Bau der Mietwohnungen durch eine weitere Wohneinheit zu erhöhen. Um dieses Ziel zu erreichen, kam nur der Umbau der Scheune dafür in Frage.
DAS KONZEPT
Die Schwierigkeit beim Entwurf war das kleine Grundstück und dazu der Wunsch die Scheune ebenfalls als Wohnraum zu nutzen. Da diese in Bezug auf das bestehende Tragwerk und der vorhandenen Raumhöhe nicht dafür geeignet war, stellte vor allem das bei der Planung eine große Herausforderung dar. Durch den zusätzlichen Umbau der Scheune, sowie der Aufnahme des schrägen Grenzverlaufs auf der Südseite des Gebäudes, wurde bei der Umsetzung der maximal mögliche Wohnraum geschaffen. Die schrägen Fensterlaibungen geben dem Gebäude noch das gewisse Etwas und begünstigen zudem den Lichteinfall in die Wohnungen.
ORT
Uder (Eichsfeld, Thüringen)
BESTAND


