

ZWISCHEN STADT UND KURPARK



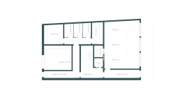
ERDGESCHOSS

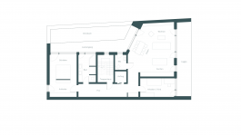
1. UND 2. OBERGESCHOSS

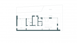
3. OBERGESCHOSS
Neubau eines
Einfamilienhauses
DIE AUFGABE
—
Bei dem Bestandsgebäude handelt es sich um ein Wohn- und Geschäftshaus im Innenstadtbereich von Heilbad Heiligenstadt, unweit des Kurparks. Auf der Rückseite des Gebäudes befinden sich ein Anbau sowie ein Garagenkomplex. Insgesamt herrscht eine sehr dichte Bebauung im Umkreis, was die Planung für den Neu- bzw. Umbau stark eingeschränkt hat. Der Wunsch des Kunden war es, hochwertige Mietwohnungen durch eine Erweiterung des bestehenden Anbaus, sowie den Rückbau des Garagenkomplexes zu schaffen.
DAS KONZEPT
—
Die größte Herausforderung war die sehr enge Bebauung im Umfeld, was sich gerade in Bezug auf Nachbarrechtliche Belange und die Brandschutzanforderungen als sehr komplex erwies. Das Ziel war es, den Neubau durch ein modernes Design bewusst von der sehr gemischten Bebauung in der Umgebung abzusetzen und gleichzeitig für eine sinnvolle sowie maximale Belichtung der Wohnungen zu sorgen. Zudem sollte die Wohnqualität durch großzügig angelegte Außenbereiche, wie die Laubengänge und Loggien sichtbar gemacht werden.
ORT
Heilbad Heiligenstadt (Eichsfeld, Thüringen)
BESTAND



ZWISCHEN STADT UND KURPARK




ERDGESCHOSS

1. UND 2. OBERGESCHOSS

3. OBERGESCHOSS
NEUBAU EINES
MEHRFAMILIENHAUSES
DIE AUFGABE
—
Bei dem Bestandsgebäude handelt es sich um ein Wohn- und Geschäftshaus im Innenstadtbereich von Heilbad Heiligenstadt, unweit des Kurparks. Auf der Rückseite des Gebäudes befinden sich ein Anbau sowie ein Garagenkomplex. Insgesamt herrscht eine sehr dichte Bebauung im Umkreis, was die Planung für den Neu- bzw. Umbau stark eingeschränkt hat. Der Wunsch des Kunden war es, hochwertige Mietwohnungen durch eine Erweiterung des bestehenden Anbaus, sowie den Rückbau des Garagenkomplexes zu schaffen.
DAS KONZEPT
—
Die größte Herausforderung war die sehr enge Bebauung im Umfeld, was sich gerade in Bezug auf Nachbarrechtliche Belange und die Brandschutzanforderungen als sehr komplex erwies. Das Ziel war es, den Neubau durch ein modernes Design bewusst von der sehr gemischten Bebauung in der Umgebung abzusetzen und gleichzeitig für eine sinnvolle sowie maximale Belichtung der Wohnungen zu sorgen. Zudem sollte die Wohnqualität durch großzügig angelegte Außenbereiche, wie die Laubengänge und Loggien sichtbar gemacht werden.
ORT
Heilbad Heiligenstadt (Eichsfeld, Thüringen)
BESTAND

